Direkt zum Inhalt
Wir sind auch für Ihre Gäste ein Zuhause!

Gästezimmer

Sie erwarten Besuch, haben aber zu wenig Platz, Ihre Lieben unterzubringen? Wir haben die Lösung!

Bereits seit vielen Jahren bieten wir unseren Mietern als besonderen Service die Möglichkeit, ihren Besuch in einer unserer drei Gästezimmer günstig unterzubringen. Alle Gästezimmer verfügen über ein Bad mit Dusche und WC, einen Fernseher, eine Kühlbox sowie eine Kaffeemaschine und einen Wasserkocher. Auch Bettwäsche ist vorhanden, Handtücher bringen Sie bitte selbst mit. Bitte beachten Sie, dass unsere Gästezimmer Nichtraucherzimmer sind und über keine Kochmöglichkeit verfügen. Das Mitbringen von Tieren ist in unseren Zimmern nicht gestattet.

  • Preis pro Nacht für Mieter der SWG: 30,00 € zzgl. 7% MwSt.                             
  • Preis pro Nacht für andere Interessenten: 40,00 € zzgl. 7% MwSt. 
  • zzgl. einmaliger Endreinigung:      25,00 € zzgl. 19% MwSt. 
  • zzgl. Wäschepaket (Wäsche pro Person): 10,00 € zzgl. 19% MwSt.

Seit 1. September 2023 ist zusätzlich zur ohnehin geschuldeten Mehrwertsteuer eine Übernachtungssteuer in Höhe von 5 % auf den Netto-Übernachtungspreis fällig.

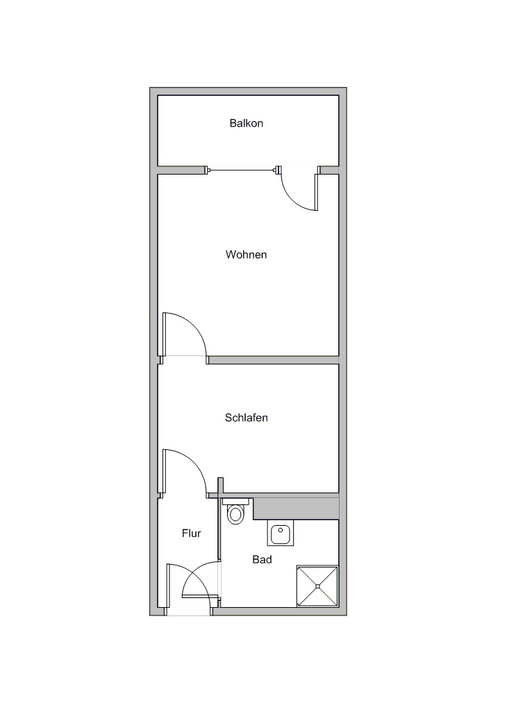
Theodor-Storm-Weg 1

Das 27 m² große, möblierte Appartement verfügt über einen barrierearmen Zugang und ist im Erdgeschoss des Hauses gelegen. Es bietet Platz für zwei Personen und ist mit einem Doppelbett sowie einer Eckcouch mit Couchtisch ausgestattet.

Das 1989 erbaute Haus befindet sich im Stadtteil Knieper West III, in direkter Nähe zu Einkaufsmöglichkeiten und einer Bushaltestelle.

Lion-Feuchtwanger-Str. 33

Das 27 m² große, möblierte Appartement verfügt über einen barrierearmen Zugang und ist im Erdgeschoss des Hauses gelegen. Es bietet Platz für zwei Personen und ist mit einem Doppelbett sowie einer kleinen Sitzecke mit einem Tisch und zwei Stühlen ausgestattet.

Das 1991 erbaute Haus befindet sich im Stadtteil Knieper West III, in direkter Nähe zu Einkaufsmöglichkeiten und einer Bushaltestelle.

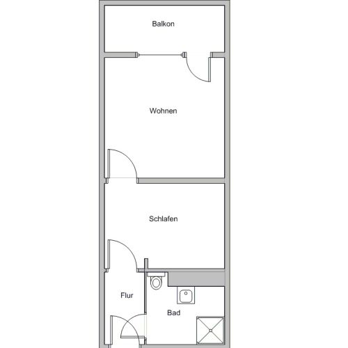
Carl-Loewe-Ring 6

Das 27 m² große, möblierte Appartement verfügt über einen barrierearmen Zugang und ist im Erdgeschoss des Hauses gelegen. Es ist mit einem Balkon, 2 Einzelbetten, einer Sitzecke inklusive Couchtisch und einem Ecksofa ausgestattet, welches als kostenfreie Aufbettungsmöglichkeit Platz für bis zu drei Personen bietet.

Das 1983 erbaute Haus befindet sich im Stadtteil Knieper West II, in direkter Nähe zum Einkaufszentrum Strelapark und einer Bushaltestelle.

Service-Center

Frau Sarnow
03831 248 520

Service-Center

Frau Ott
03831 248 533

Ihre Ansprechpartner

Sollten Sie weitere Fragen zur Anmietung unserer Gästezimmer haben, kontaktieren Sie uns gerne. Alternativ können Sie für Buchungsanfragen das untenstehende Kontaktformular nutzen.

Anfrageformular

Sie sind an der Buchung eines Gästezimmers interessiert? Nutzen Sie ganz einfach unser Kontaktformular. Wir werden Ihnen schnellstmöglich eine Antwort zukommen lassen. Wir freuen uns, Ihren Besuch in unseren Gästezimmern willkommen zu heißen.

Ich interessiere mich für folgende Wohnung:

Persönliche Daten:

Ich erkläre mich damit einverstanden, dass meine Daten gemäß Datenschutzerklärung zum Zweck der Gästewohnungsanzeige automatisiert gespeichert und verwendet werden. *

* Pflichtfelder