Direkt zum Inhalt
Objektnummer: 30155/1/107

Ruhiges und zentrales Wohnen im Tribseer!

Gesamtmiete 622,32 €
Zimmer 2,0
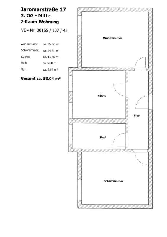
Größe 53,04 m²
Jaromarstr. 17
18437 Stralsund
Stadtteil: Tribseer
Etage: 2

Kosten

Kalt-Miete 424,32 €
Nebenkosten 198,00 €
Gesamtmiete 622,32 €

Verfügbarkeit

Frei ab sofort

Energie

Energieausweisart Verbrauchsenergieausweis
Warmwasser enthalten ja
Wesentlicher Energieträger GAS
Erstellungsdatum des Ausweises

Details

Beschreibung

Hier können Sie sich wohlfühlen! Sie wohnen in einem ruhigen und komplett sanierten Altbau. Die 2 Raumwohnung ist mit einem gefliesten Wannenbad ausgestattet. Das Haus verfügt über eine gedämmte Fassade, einer Wechselsprech- und Klingelanlage, sowie über isolierverglaste Fenster.

Ansprechpartner

J. Schwols
03831 248 341

Wo befindet sich die Wohnung?

Im Tribseer wohnen Sie in einer ruhigen Wohnlage. Sie haben mehrere Naherholungsmöglichkeiten am Knieper-und Moorteich, die „Weißen Brücken“ laden Sie herzlich zum Spazieren und Entspannen ein. Der Hauptbahnhof und die Altstadt sind für Sie gut zu Fuß erreichbar. Sie finden zahlreiche Einkaufsmöglichkeiten, Ärzte und Apotheken sowie Kindertagesstätten, Grund- oder Realschulen. Sie haben die Möglichkeit einer schnellen Anbindung an die Ortsumgehung und somit auch an die A 20.

Sie haben Interesse an der Wohnung? Schreiben Sie uns!

Ich erkläre mich damit einverstanden, dass meine Daten gemäß Datenschutzerklärung zum Zweck der Wohnungssuche automatisiert gespeichert und verwendet werden. *

* Pflichtfelder